SIGNAGE: APARTMENTS + HOTELS

EMC: Gila River Resort & Casino, AZ

Exterior shot of Gila River Resort & Casino with a large electronic message center on the facade that displays a roulette
Large electronic message center on the facade of the Gila River Resort & Casino
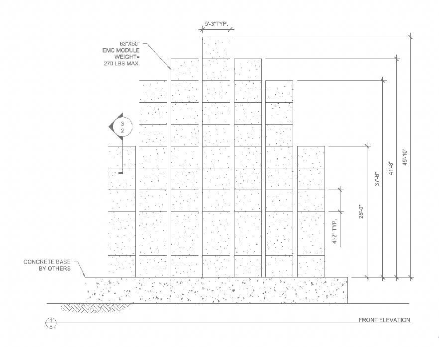
Blueprint of an electronic message center with materials, dimensions, and a stamp from a licensed professional engineer

EMC: Hard Rock Fire Hotel, Sacramento, CA

Hard Rock Hotel entrance with electronic message centers in the form of fire flames behind a large guitar structure
Technical drawing of the front view of an electronic message center detailing dimensions and materials
Technical drawing of the side view of an electronic message center detailing dimensions and materials

Monument Signs: Entrada, Scottsdale, AZ

Large horizontal monument sign that reads “Entrada” in raised letters illuminated from behind
Large vertical monument sign that read “Scottsdale Entrada” and displays the apartment complex logo
Blueprint of a tall monument sign with materials, detailed dimensions, and a stamp from a licensed professional engineer
Previous
Previous

Amusement Parks

Next
Next

Auto